Uno dei luoghi nevralgici della città è pronto a cambiare prospettiva: ecco come muterà la viabilità e le abitudini nel cuore del capoluogo meneghino
Un cambio drastico, destinato a modificare la viabilità, le abitudini e a portare a variazioni nette al capoluogo meneghino. Milano si appresta a vivere una novità sostanziale, destinata a stravolgere una delle zone nevralgiche della città. Dopo anni di attesa, di riunioni, di strategi eche sembravano destinate a restare su carta, uno dei luoghi simbolo della città, cambierà in modo netto.

La zona diventerà un area pedonale: un cambio netto rispetto al passato e una novità sostanziale, destinata a stravolgere l’intero centro storico. Dopo numerosi tentativi (fino ad oggi andati a vuoto), la città si appresta a vivere un cambio drastico: un vero e proprio intervento radicale, destinato a riqualificare l’intera area e a modificare le abitudini dei milanesi. Una novità destinata a cambiare il centro storico e nevralgico della città.
Milano, cambia il centro storico: tutte le novità
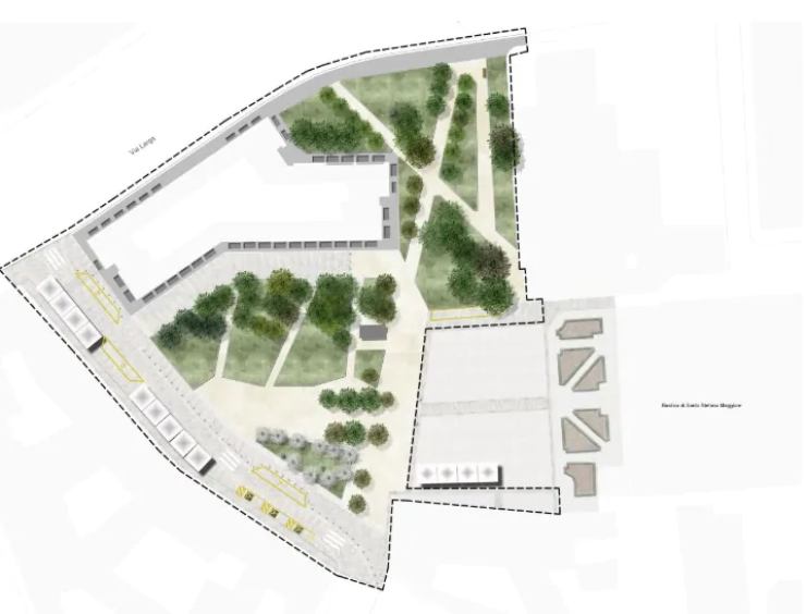
Stiamo parlando dell’istituzione di un’area pedonale, che sorgerà nel cuore di Milano: tra la Piazza Duomo e l’Università Statale. La Piazza di Santo Stefano, dopo anni di discussioni e di attese, diventerà una vera e propria area pedonale. La Piazza si trova a due passi dal Duomo, in pieno centro ed ospita la famosa Basilica di Santo Stefano Maggiore, oltre alla Chiesa di San Bernardino alle Ossa. L’area è considerata uno snodo nevralgico della città, trovandosi a due passi dall’Uscita della M1 e M3 Duomo.

Oggi l’area è piena di autovetture. Nonostante le migliaia di turisti che ogni giorno passano per la zona e le centinaia di universitari che quotidianamente passano per la zona, l’area non è mai stata interdetta al traffico. Con buona pace della cittadinanza, da sempre pronta a chiedere un cambio della viabilità. Oggi la situazione sembra destinata a cambiare. Il nuovo progetto di riqualificazione dell’area è stato presentato nei giorni scorsi in Comune ed è stato esaminato dalla Commissione Urbanistica e Verde: riguarda una superficie complessiva di 4.500 metri quadrati.
Il progetto prevede una drastica rimozione dell’asfalto e la sua sostituzione con pavimentazioni tradizionali milanesi – masselli, lastre e cordoli in pietra, oltre al calcestre – più permeabili e coerenti con il contesto storico. L’intervento prevede l’aggiunta di nuovi percorsi accessibili, un’illuminazione a basso impatto energetico e arredi urbani, (che rientra nei vincoli Europei destinati alle case Green) e circa 1.800 metri quadrati destinati a verde, con essenze autoctone a basso fabbisogno idrico e graminacee per favorire biodiversità e ombreggiatura.





